La Crescenta Library
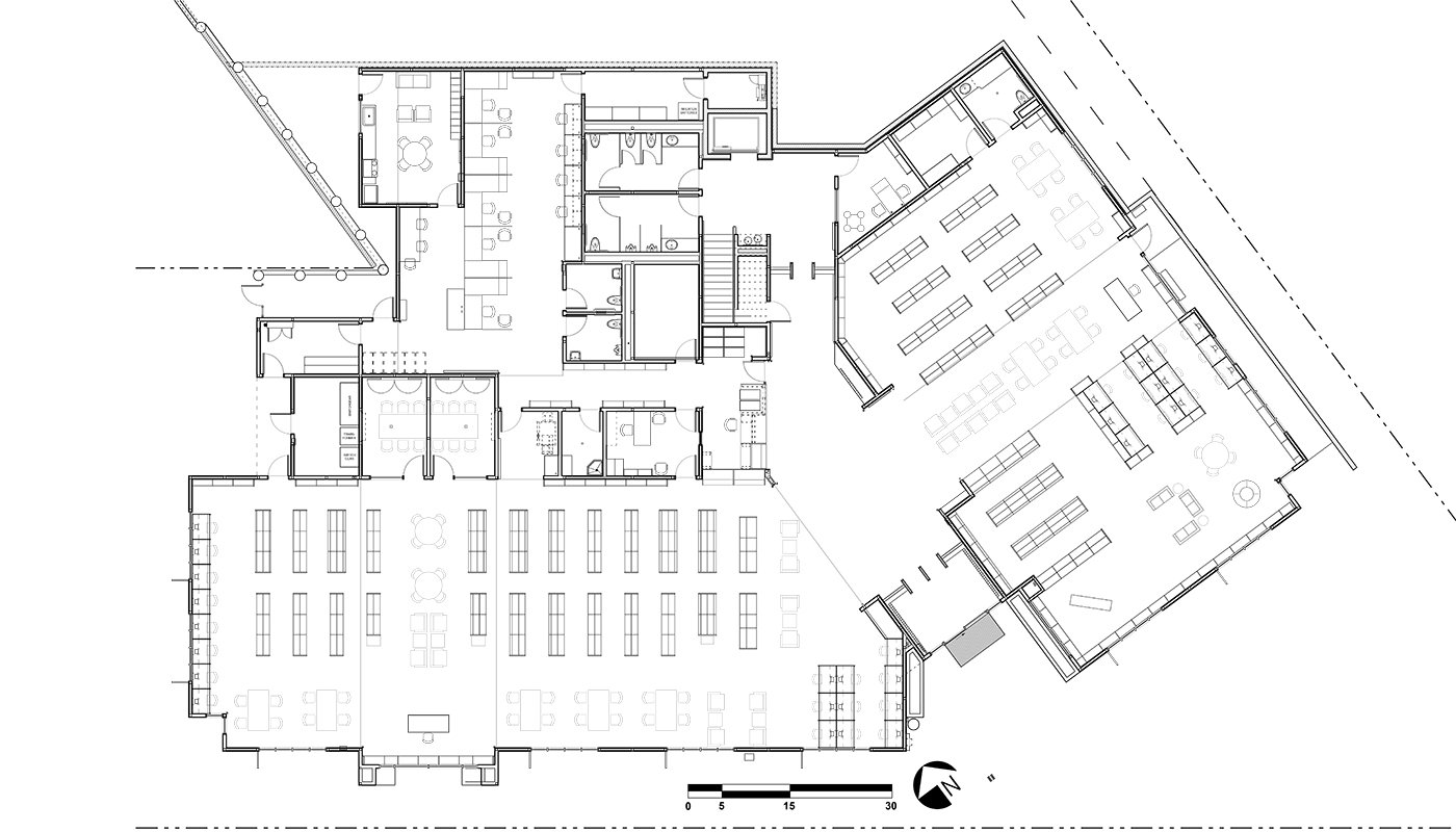
This Library faced two primary challenges: one, technical, and the other, aesthetic. It needed to fit into an awkward L-shaped site with multiple acute angles, with more than 16′ of height difference from one end to the other. It also needed to respond to the aesthetic preferences of the local community group, which asked for a Craftsman-style building, but modified to meet commercial building uses rather than residential needs for which the style originally developed.
The site slope and site geometry problems were resolved with a variety of retaining walls, and with deviating from the typical Public Library preference for single story layouts. With the meeting room at the second story, along with a restroom,a small exterior gathering area and a smaller parking lot, the ground floor could then accommodate all of the rest of the library’s functions: a staff area, adult, teen, and childrenÕs reading and book shelving areas, and a generous lobby and customer service area.
The aesthetic issues were resolved through careful negotiating with Code requirements, classifying the building as Type V, which allowed for the ample use of exterior wood elements, recalling Craftsman style assemblies without sacrificing the many maintenance and durability advantages of Type II steel and metal stud construction.
Although this project was not required to be LEED Certified, it incorporates several sustainable design features as a matter of course. Extensive daylighting of public spaces not only allows the CoLAPL to save lighting energy, but it also brings this library into a long tradition of public library design.
Water, another precious resource in Southern California, and especially in the dry Foothills area, is conserved through the use drought tolerant and native plants for landscaping. It is also saved by the use of high-efficiency restroom fixtures with automatic shutoff sensors.
All of the roofing and on-site hardscaping is high-albedo, reducing local heat buildup. To the same end, all of the exterior glazing is high performance, low-e coated, and calculated to reduce solar heat gain to the building interior while allowing for daylight in and views out.
Wooden exterior shading devices such as trellises, horizontal and vertical fins, and light shelves which reflect the winter sun deeper into the interior, serve to filter sunlight, block glare, and add texture to the building exterior. The extensive use of a weather and insect-resistant ip hardwood in these assemblies, while evoking the desired Craftsman styling, should prove to be low maintenance and long lasting.
The La Crescenta Library won the Best New Building Award from the Crescenta Valley Chamber of Commerce in 2009 and the Project of the Year Award from the American Public Works Association in 2010.
